Apartamento clásico, con balcones
Paseo del Prado, Madrid - Barrio de Las Letras650.000 €
- Dormitorios:2
- Baños:1
- Ref:581
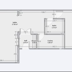
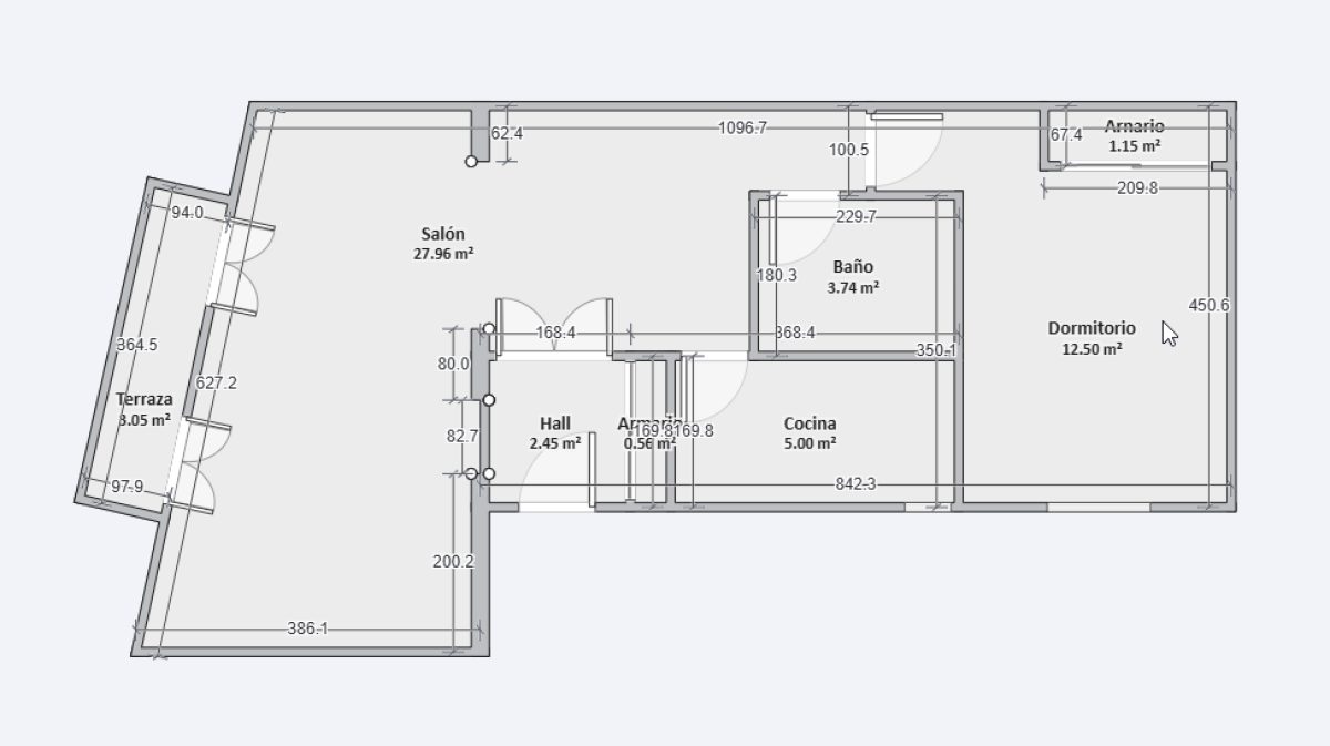
- Superficie:72 m2
En una de las zonas más elegantes y castizas de Madrid, enfrente del Jardín Botánico, junto a la Cuesta de Moyano y la plaza de Neptuno se sitúa esta finca de 1910 completamente rehabilitada y actualizada, tiene ascensor en las entreplantas, mantiene las bonitas escalera de madera y forja y el portal, impecable, conserva el estilo original y cuenta con una bonita fachada de balcones propia de la época de su construcción. En la última planta hay una azotea con vistas al Barrio de las Letras y, aquí, el piso disfruta de un trastero privado con ventana.
Apartamento de 72 m2 en buen estado, se distribuye en vestíbulo, salón con dos salidas a la balconada, exterior con vistas a calle peatonal, un dormitorio con armario empotrado (originalmente dos dormitorios), baño completo y cocina independiente. El salón resulta espectacular con sus dos puertas al balcón corrido y mantiene las contraventanas y venecianas originales perfectamente actualizadas sobre cerramientos actuales que aíslan perfectamente.
Esta vivienda resulta luminosa, tranquila y silenciosa por sus vistas a la calle posterior que no tiene tráfico; un apartamento que mantiene el aire de los primeros años del Siglo XX y proporciona una distribución óptima del espacio, sin pérdidas, se podría obtener un segundo dormitorio si se incorpora la cocina al salón.
En buen estado y con una localización extraordinaria, el apartamento se encuentra en una finca clásica madrileña y que conserva todo los elementos esenciales de la época.
Disponible presupuesto de reforma by ![]()
- exterior
- balcones
- ascensor
- trastero
- armario empotrado
- cocina independiente
- vestíbulo


































Fotos
Plano acotado
Video
Tour virtual
Opciones de reforma