Oficina en Zona Bernabéu/Azca
Paseo de la Habana, Madrid - Zona bernabéu950.000 €
- Dormitorios:0
- Baños:0
- Ref:577
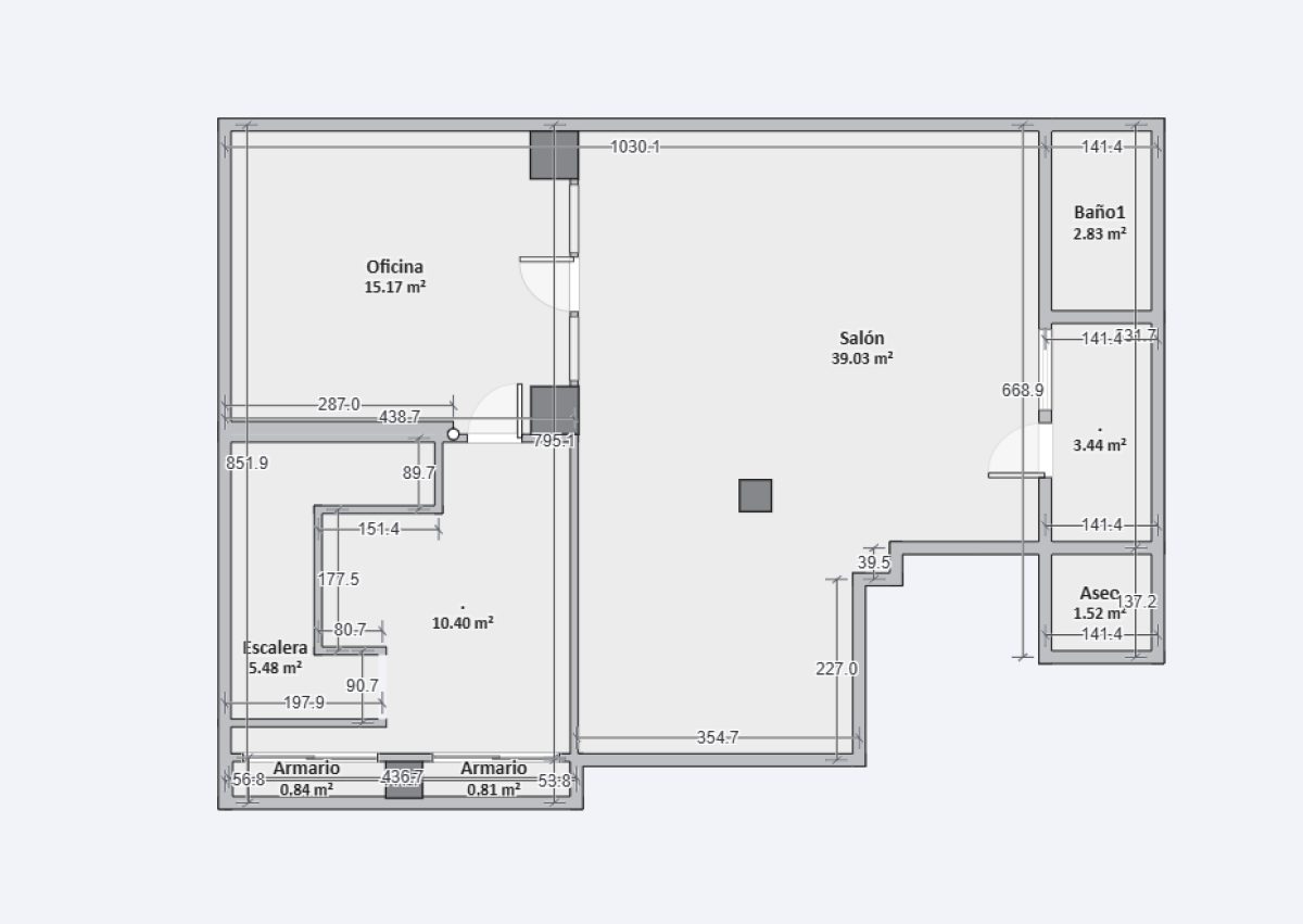
- Superficie:224 m2
Oficina o despacho a la venta en el Paseo de la Habana, en el exclusivo barrio de El Viso, a pocas manzanas del Paseo de la Castellana, en un edificio de categoría con portal representativo, portero, ascensor, suministros centrales y jardín interior comunitario. Rampa de acceso desde el portal.
224 m2 en dos plantas comunicadas mediante escalera interior, tiene vistas al bonito jardín interior de la comunidad, ambas alturas tienen planta cuadrada y las separaciones están realizadas por medio de tabiquería que permite obtener múltiples distribuciones alternativas y un aprovechamiento óptimo del espacio. Los despachos disfrutan de ventanales de vistas muy agradables y el conjunto tiene dos baños y un aseo, el sótano tiene acceso a un patio y entrada independiente por lo que puede servir para usos distintos.
Por la calidad de la finca puede ser útil para despacho que incluya una superficie dedicada a vivienda o alojamiento, uso mixto que cumpla la doble función de trabajo y descanso u ocio.
Destaca el inmueble por sus techos altos, la amplitud de sus ventanas y la calidad de la finca.
La ubicación es espectacular, solamente cruzando la Castellana nos encontramos con Azca y, en la misma acera, pocos metros más arriba, con el Estadio Santiago Bernabéu. En este barrio están instalados negocios de éxito de las mejores firmas, una ubicación ideal para cualquier establecimiento que quiera un plus de exclusividad.
- ascensor
- portero
- suministros centrales
- dos plantas
- tres baños
- jardín interior
- ventanales
- vistas





































Fotos
Plano acotado
Video
Tour virtual