Luminoso, en excelente estado
Calle Alcalá, Madrid - Barrio Salamanca1.170.000 €
- Dormitorios:2
- Baños:2
- Ref:575
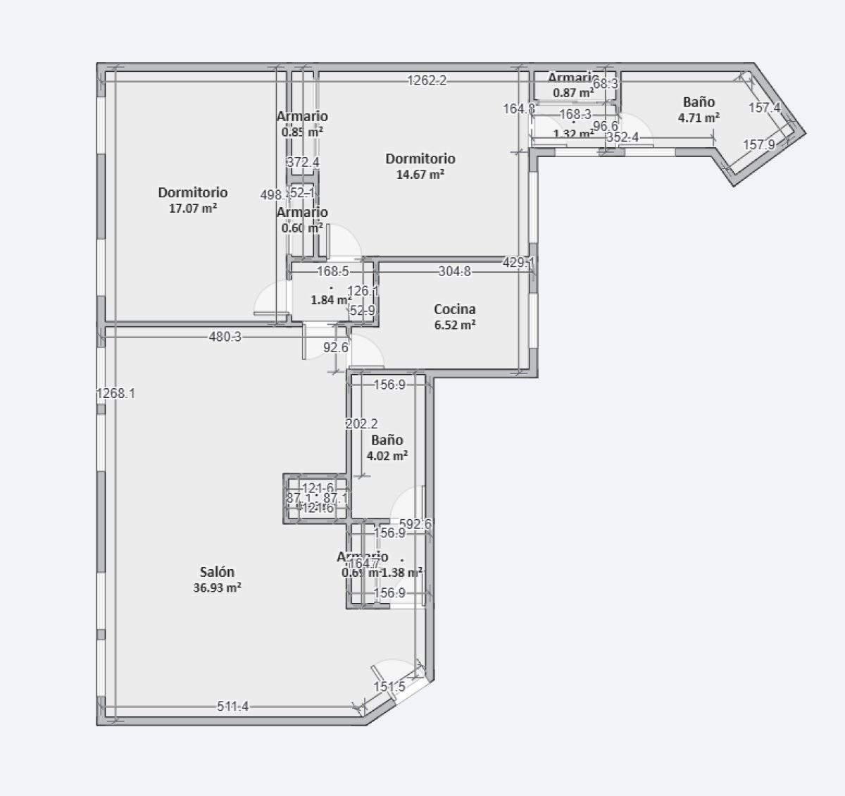
- Superficie:112 m2
Finca completamente rehabilitada en 2007, solo se conserva la bonita fachada original de estilo clásico del Barrio de Salamanca, tiene un bonito portal, ascensor y trastero privado. La localización es espectacular en plena calle Alcalá, a un paseo de pocos minutos a la Puerta de Alcalá y al Parque de El Retiro, una zona con un vecindario agradable y la más amplia oferta de comercios de la capital que representan a las más exclusivas marcas y, también, disfruta de todos los servicios que necesita un barrio residencial. El lugar ideal para vivir en el centro de Madrid.
A la venta ático, último piso, de 112 m2 en buen estado, se distribuye en salón-comedor con amplias ventanas tipo velux, dos amplios dormitorios con armarios empotrados, cocina independiente y dos baños completos. La cocina está completamente amueblada y equipada con electrodomésticos de alta gama, el dormitorio principal tiene un muy buen tamaño, cuenta con dos armarios empotrados y está en suite con un baño con jacuzzi, el segundo baño tiene un armario empotrado adicional apto para armario de descarga. La vivienda está completamente aislada por el techo de las inclemencias del tiempo y se pueden hacer mejoras en los espacios para que resulten aún más amplios, aunque se encuentra en perfecto estado para entrar. Destacan el tamaño de todas las estancias, la optimización de espacios que hace que la totalidad de su superficie sea útil y la excepcional luminosidad por altura y orientación. El piso disfruta de un trastero en la misma planta, separado de la vivienda simplemente con un tabique y que se puede incorporar a la vivienda fácilmente como espacio adicional de almacenaje.
Ubicación exclusiva, luminosidad espectacular, en muy buen estado.
- ascensor
- buen estado
- exterior
- suite
- cocina amueblada
- electrodomésticos
- aire acondicionado
- calefacción
- dos baños
- trastero
- armarios empotrados





























Fotos
Plano acotado
Video
Tour virtual