En venta
Oficina o despacho en edificio representativo
Avenida Reina Victoria, Madrid - Vallehermoso, Chamberí750.000 €
- Dormitorios:0
- Baños:0
- Ref:585
- Superficie:191 m2
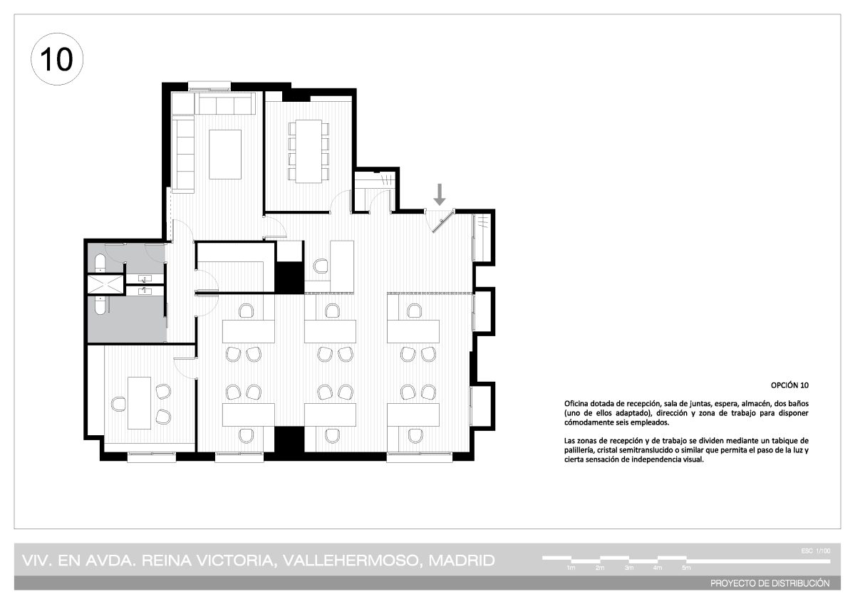
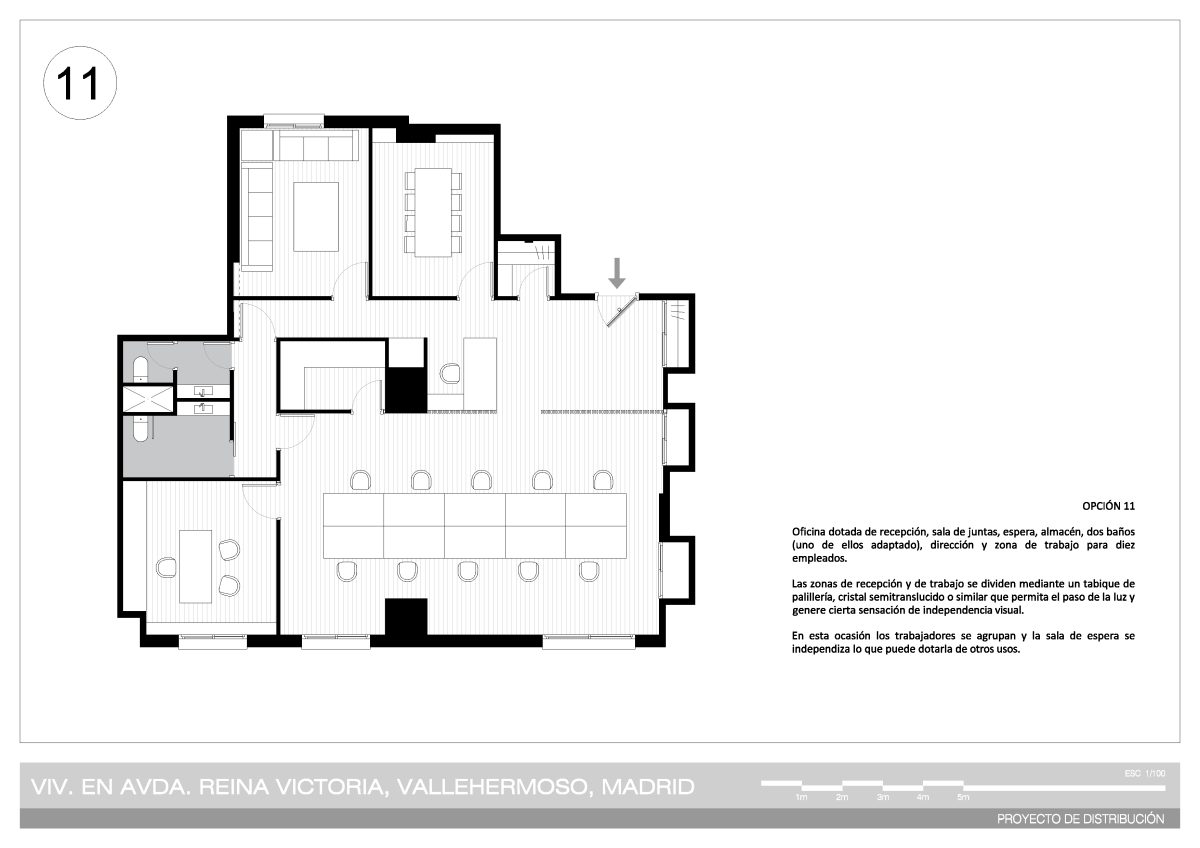
Edificio representativo ubicado en plena Avenida de la Reina Victoria, tiene una entrada ajardinada, un muy buen portal, varios ascensores, portero y calefacción central. Se trata de una oficina con agradables vistas a la calle a través de cristaleras, 191 m2 que pueden distribuirse libremente ya que las divisiones están realizadas por medio de tabiques y cuenta con amplias ventanas, tiene dos baños completos. Necesita de alguna actualización y resulta una oficina alegre y luminosa, muy versátil.
Localización excelente en la elegante avenida de la Reina Victoria, a un cruce de calle de la Administración de Hacienda, en un edificio de categoría.
- Exterior
- dos baños
- calefacción central
- ascensor
- portero
- jardines
- ventanales grandes
- armarios empotrados























Fotos
Plano acotado
Video
Tour virtual
Opciones de reforma